Zweizimmer-Wohnung mit Balkon 1. OG-barrierefrei plus Aufzug






- Objektart
- Wohnung
- Objekttyp
- Etagenwohnung
- Vermarktungsart
- Kauf
- PLZ
- 91550
- Ort
- Dinkelsbühl
- ImmoNr
- 140739404
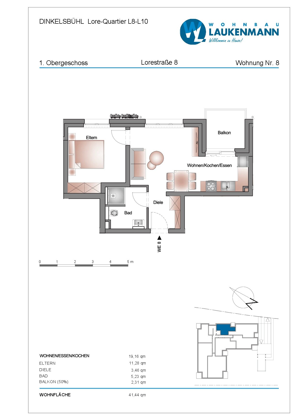
- Wohnfläche
- ca. 42 m²
- Nutzfläche
- ca. 4 m²
- Anzahl Zimmer
- 2
- Anzahl Badezimmer
- 1
- Kaufpreis
- 210.200,00 €
- Baujahr
- 2025
- Endenergiebedarf
- 37,8 kWh/(m²a)
- Energieausweis
- Bedarfsausweis
- Energieausweis gültig bis
- 26.12.2035
- Energieeffizienzklasse
- A
- wesentlicher Energieträger
- Fernwärme
Beschreibung
Direkt an der wunderschönen, historischen Altstadt von Dinkelsbühl entstehen zwei attraktive und besondere Mehrfamilienhäuser. Das Wohngebiet Gaisfeld wo die Häuser gebaut werden erhält durch die Ansiedlung von Nahversorgern eine eigene, fußläufg erreichbare Infrastruktur und die historische Altstadt ist schnell zu Fuß erreicht. Die als KFW Effizenzhäuser zu bauenden Gebäude entsprechen dem neusten Stand der Technik und sind als Energiesparhaus 40 durch sehr attraktive Kredite der KFW-Bank förderfähig, Der Anschluss an das Fernwärmenetz der Stadt, die energiefördernde Fotovoltaikanlage, das Wärmedämmverbundsystem und die zusätzliche Begrünung der Gebäude und Dächer ergeben eine zeitgemäße Energiebilanz des Bauprojektes und unterstreichn den besonderen Charakter der Gebäude. In den Wohnugen wird ein hoher Qualitätsanspruch verwirklicht der das Wohlbefinden der Bewohner als Maß der Ausstattung priorisiert. Die hochwertige Ausstattung durch Echtholzböden, exclusiven Badezimmern mit spülrandlosem Wand-Tiefspül-WC, ebenerdiger Dusche für barierefreie Nutzung und elektrischem Handtuchheizkörper ist im Kaufpreis enthalten, Dreifachverglasung der Fenster, umfangreiche Elektroausstattung und alle Malerarbeiten sind im Leistungspaket enthalten. Barrierefreiheit mit Personenaufzügen, eigenem Keller für jede Wohnung, ein Fahrradraum/ Kinderwagenabstellfläche, der gemeinsame Waschmaschinenraum und einer großzügig angelegten Tiefgarage runden das Leistungsangebot abLage
Wir bauen für Sie Ihre schlüsselfertige Traumwohnung in einem KFW Effizienzhaus 40 nach EnEV - für höchste umweltbewusste Effizienz. Sichern Sie sich beim Kauf einer Wohnung die äußerst zinsgünstige KFW-Förderung als Kredit durch den Staat -Für Kapitalanleger ist eine attraktive Sonder AVA von 5% zusätzlich möglich!!!
Gerne vereinbaren wir mit Ihnen ein unverbindliches und ausführliches Beratungsgespräch, wenn Sie uns das ausgefüllte Kontaktformular zukommen lassen.
Aus Erfahrung wissen wir, dass Wohnraum dieser Art begehrt und rasch verkäuflich ist, daher lohnt sich hier eine schnelle Entscheidung. Auch beraten wir Sie gerne in Finanzierungsfragen und stehen Ihnen von Anfang an hilfreich zur Seite um Ihren Wohntraum zu erfüllen!
Karte
Ausstattung
Die exclusiv ausgestattete 2 Zimmer-Wohnung hat einen großzügigen offenen Wohn/Kochen/ Essbereich, ein Schlafzimmer, ein Badezimmer mit spülrandlosem Wand-Tiefspül-WC, ebenerdiger Dusche für barrierefreie Nutzung und elektrischem Handtuchheizkörper, Fußbodenheizung mit individueller Steuerung in jedem Zimmer, Fenster Dreifachverglasung, Die Fenster sind alle mit elektrischen Rollläden und der Wohn/Essbereich mit elektrischen Außenjalousien ausgestattet - diese Variante garantiert viel Licht bei zusätzlich möglichem Sonnenschutz durch die verstellbaren Jalousien im Wohnbereich. Hochwertige Echtholzparkett Böden und in den gefliesten Bereichen exklusive Fliesen - beides können sie selbst mit bestimmen. Die Lüftungsanlage mit Wärmerückgewinnung sorgt für gutes Raumklima. Videosprechanlage mit Farbbildschirm,Der attraktivec Balkon öffnet die Wohnung nach draußen. Ein eigener Keller, der gemeinsame Fahrradraum - mit Kinderwagenabstellfläche und dem Waschmaschinenraum im Untergeschoss sind im Leistungspaket enthalten,
Sonstige Angaben
Die historische Altstadt von Dinkelsbühl ist ein Juwel an mittelalterlicher Kulisse - die Infrastruktur um der Ortskern ist sehr gut vernetzt. Die Stadt im Dreieck zwischen Crailsheim - Elwangen und Ansbach ist ein idealer Ort um in landschaftlich reizvoller Umgebung zu leben. Die Lebensqualität der Stadt wird von Faktoren bestimmt wie Verfügbarkeit und Qualität von Wohnraum, dem kulturellem Angebot, Arbeitsplatzangebot, ausgewogener Sozialstruktur, Freizeitmöglichkeiten und einer intakten Umwelt. Die Große Kreisstadt Dinkelsbühl kann hier in allen Bereichen punkten.Dinkelsbühl liegt an der Romantischen Straße (B25), die von Würzburg über Dinkelsbühl nach Füssen führt und zu einer der ältesten und bekanntesten Ferienstraßen in Deutschland zählt. Dinkelsbühl liegt an der Autobahn A7 Würzburg-Ulm und ist über die Autobahnausfahrt Dinkelsbühl/Fichtenau in ca. 10 Minuten problemlos zu erreichen.
Crailsheim und Ellwangen liegen nur etwa 20 Kilometer voneinander entfernt. Das Miteinander der Städte beweist, was anderen nur selten gelingt: die erfolgreiche Zusammenarbeit dreier Städte und weiterer elf Gemeinden über die Grenzen dreier Landkreise und der Bundesländer Baden-Württemberg und Bayern. Im Interesse der Bürger und Unternehmen stärken den gemeinsamen Lebens- und Wirtschaftsraum und machen ihn für Investoren und Gäste interessant.
Seiten: 1