Ein Ort seltener Schönheit, Juwel über den Dächern von SHA -Baugrundstück mit Baugenehmigung!!
Exklusiv














- Objektart
- Grundstück
- Objekttyp
- Wohnen
- Vermarktungsart
- Kauf
- PLZ
- 74523
- Ort
- Schwäbisch Hall
- ImmoNr
- 2025-00758
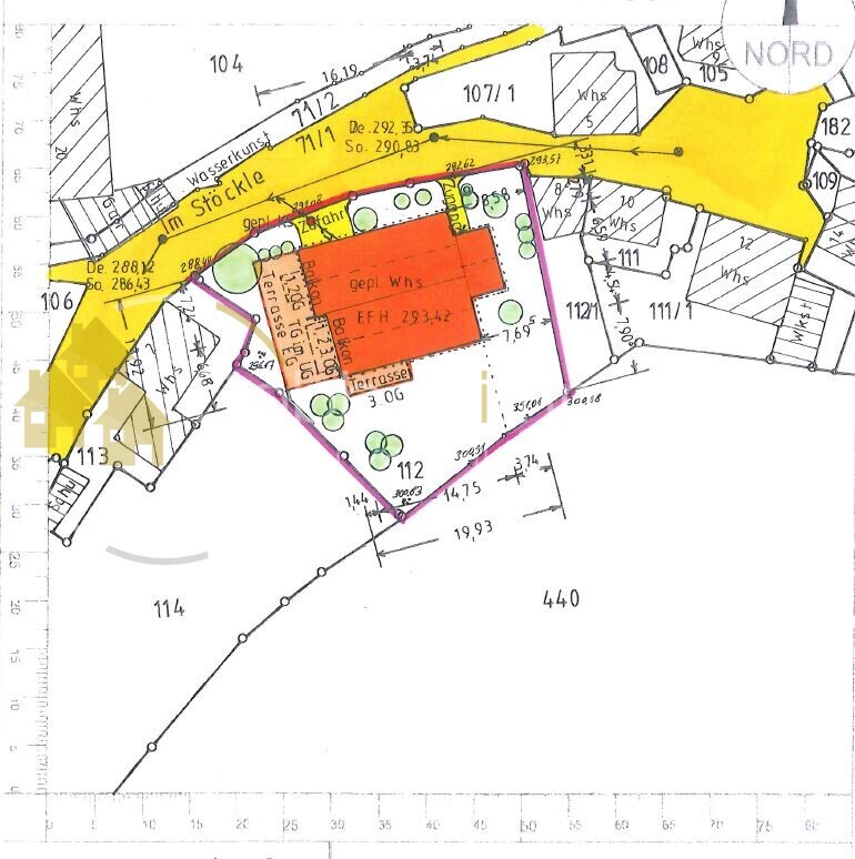
- Grundstücksgröße
- ca. 845 m²
- Kaufpreis
- 730.000,00 €
- Außen-Provision
- 3,57
Beschreibung
Es gibt Orte, die man betritt – und Orte, die man fühlt. Dieses Baugrundstück gehört zweifellos zu Letzteren.In erhabener Lage von Schwäbisch Hall, mit einem atemberaubenden Panoramablick über die historische Altstadt von Schwäbisch Hall, präsentiert sich dieses Grundstück als wahres Schmuckstück – einzigartig in seiner Lage, außergewöhnlich in seinem Potenzial.
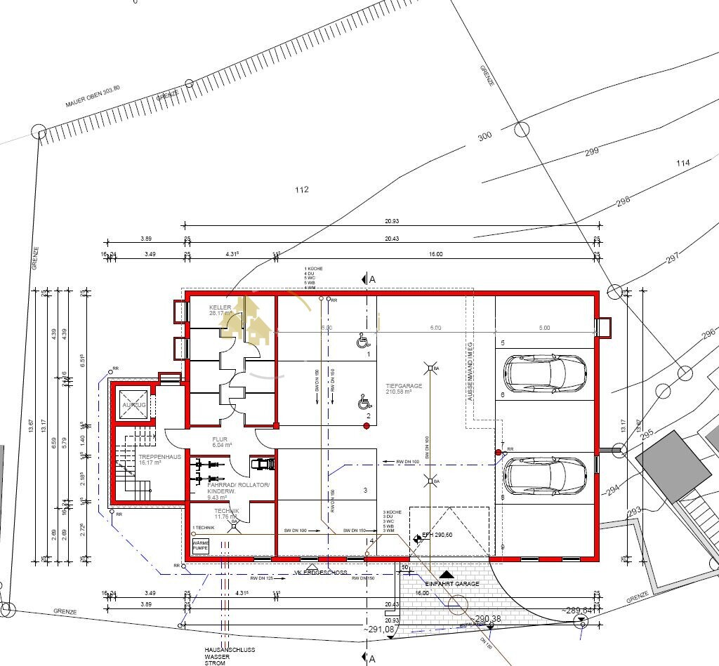
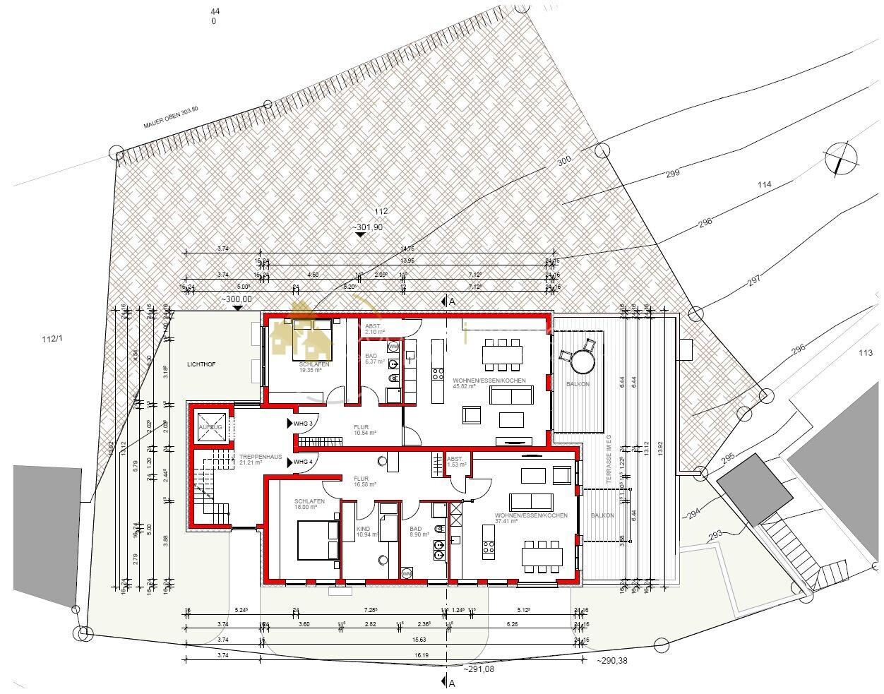
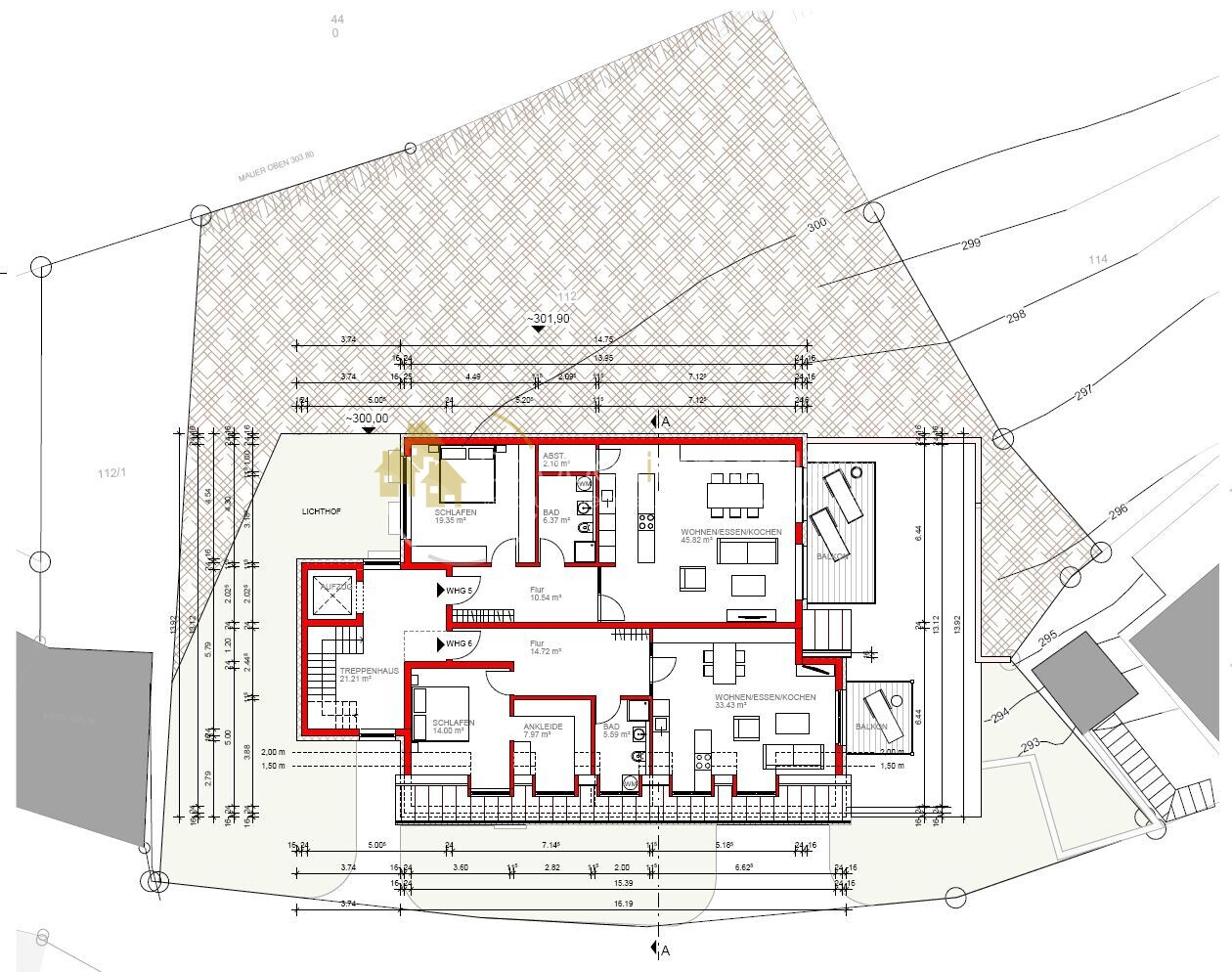
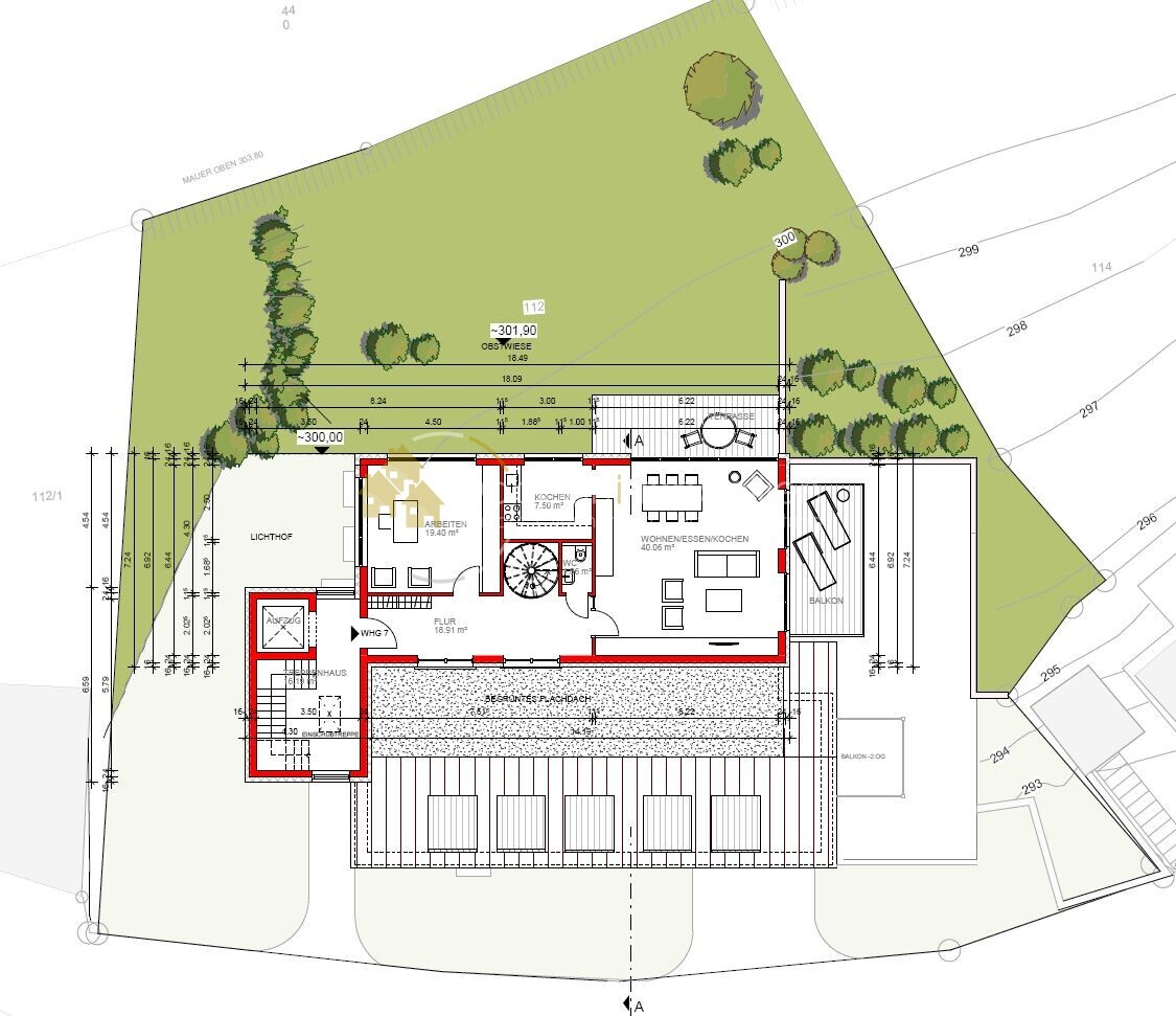
Die Baugenehmigung ist bereits erteilt, die Baugrunduntersuchung liegt vor – alles ist vorbereitet für den Beginn eines Projekts, das höchste Ansprüche erfüllt: Ein Mehrfamilienhaus mit 7 luxuriösen Wohneinheiten und insgesamt rund 668 m² Wohnfläche, dazu 9 komfortable Tiefgaragenstellplätze.
Lage
Willkommen im historischen Herzen von Schwäbisch Hall – einem Ort, an dem Geschichte lebendig ist und Lebensqualität großgeschrieben wird. Das Grundstück liegt im historischen Viertel, dort, wo Kopfsteinpflaster und Kultur sich begegnen, wo die Aussicht weit über die Stadt reicht und das Leben noch Seele hat. Hier sind Sie umgeben von Geschichte, Kunst und Menschen, die das Besondere lieben. Einkaufsmöglichkeiten, Schulen, Cafés und die malerische Altstadt sind nur einen Spaziergang entfernt – und doch genießen Sie hier absolute Ruhe.Karte
Ausstattung
Dieses Grundstück ist bereit, Großes zu tragen. Die genehmigte Planung ermöglicht moderne, lichtdurchflutete Wohnungen mit großzügigen Grundrissen, durchdachten Details und unvergleichlicher Aussicht. Jeder Quadratmeter dieses Projekts strahlt Wertigkeit aus – ein Ort, an dem Architektur zur Emotion wird.Ob als exklusives Investment, repräsentatives Bauvorhaben oder persönliches Herzensprojekt – hier entsteht kein Haus. Hier entsteht ein Lebensgefühl. Ein Zuhause, das Beständigkeit, Stil und Individualität verkörpert. Ein Juwel, das nur darauf wartet, in die richtigen Hände zu gelangen – in Ihre.
Seiten: 1